Haus Brandenburg - Appartement Hölscher

Wir benötigen Ihre Zustimmung

Diese Webseite verwendet Google Maps zur Darstellung von Karten.
Hierbei werden Daten an Google übermittelt. Näheres finden Sie unter Datenschutz.

Sylt Appartements
Andreas-Dirks-Str. 14
25980 Sylt / Westerland
Ferienwohnung
  • Nichtraucher Nichtraucher
  • Internetzugang Internetzugang
  • Waschmaschine Waschmaschine
  • Parkplatz Parkplatz
  • Balkon/Terrasse Balkon/Terrasse
Preis: ab 81,40 € *
pro Nacht
Konkrete Preisangaben werden in der Buchung angezeigt
oder in der Unterkunftssuche
Beschreibung der Unterkunft
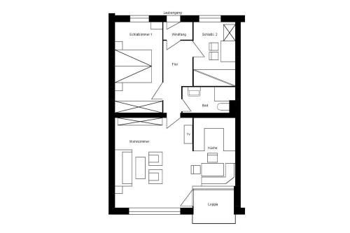
Das ca. 85 m² große 3-Zimmer-Appartement mit Südbalkon für bis zu vier Personen befindet sich in der 2. Etage des Appartementhauses "Haus Brandenburg" am Brandenburger Platz, nicht weit vom Strand, den Fußgängerzonen, dem „Syltness-Center“ und der „Sylter-Welle“. Das Appartement liegt zum Innenhof.

App. Hölscher #278
Lage:
Die Wohnung befindet sich in der 2. Etage des Appartementhauses "Haus Brandenburg" am Brandenburger Platz, nicht weit vom Strand, den Fußgängerzonen, dem „Syltness-Center“ und der „Sylter-Welle“. Das Appartement liegt zum Innenhof.
Größe:
3-Zimmer-Appartement ca. 85 m². Für bis zu vier Personen.

Ausstattung:
Im Wohnzimmer steht die neue Sitzgarnitur mit 2 Sesseln und bequemer Couch. Flachbild-TV und Kompaktanlage sind vorhanden. Am Südbalkon steht der Essplatz, daneben ist in einer Nische die neue Küche mit Geschirrspüler, 4er-Ceranfeld und Backofen untergebracht. Zwei Schlafzimmer sind vorhanden. In dem großen Schlafzimmer steht ein Doppelbett, in dem kleineren ein Etagenbett, in dem auch Erwachsene schlafen können. Das Bad hat eine großzügige Dusche.
Die gesamte Wohnung ist mit neuem Designboden ausgelegt und eignet sich daher auch für Allergiker. Haustiere sind ausdrücklich nicht gestattet. Selbstverständlich darf im Appartement nicht geraucht werden. Auf dem Innenhof der Appartementanlage ist ein eigener PKW-Stellplatz vorhanden.
Bitte beachten Sie die Regelung zur gesonderten Kurtaxe der jeweiligen Gemeinde auf Sylt. Diese wird gesondert berechnet und ist spätestens bei Anreise fällig.

Aufgrund der positiven Rückmeldungen ist das Wäschepaket jetzt mit im Angebot enthalten. Wenn Sie keine Wäsche wünschen, bitten wir Sie, die Wäsche spätestens 48 Stunden vor Anreise explizit und schriftlich abzubestellen. Vielen Dank.

Früheste Anreise ab 17:00 Uhr
Späteste Abreise bis 10:00 Uhr

Mietbedingungen
Zahlung: Nach Vertragsabschluss 10% Anzahlung, Restzahlung 14 Tage vor Anreise.
Bei kurzfristiger Buchung Zahlung in bar oder per EC-Karte vor Ort.
Storno: Von einer Direktbuchung können Sie innerhalb von 24 Stunden kostenlos zurücktreten.
Entfernungen
Sylter Welle 450 m (6 min zu Fuß)
Bahnhof Sylt 820 m (11 min zu Fuß)
Strand Westerland 920 m (13 min zu Fuß)
Flughafen Sylt 2.290 m (9 min Fahrrad)
Strand Wenningstedt 3.940 m (12 min Fahrrad)
Strand Kampen (Rotes Kliff) 5.080 m (16 min Fahrrad)
Hafen Munkmarsch 5.680 m (17 min Fahrrad)
Strand Rantum 8.270 m (25 min Fahrrad)
Sansibar Strand (Rantum) 11 km 993 m (36 min Fahrrad)
Hafen List 16 km 822 m (54 min Fahrrad)
Erlebniszentrum Naturgewalten 16 km 948 m (53 min Fahrrad)
Hafen Hörnum 19 km 44 m (60 min Fahrrad)
Fragen zur Buchung
Wie kann ich buchen?
Per Klick auf den Button 'Buchen' gelangen Sie zum Buchungsformular, wo Sie zunächst Ihre Reise- und Kontaktdaten angeben/ergänzen. Bevor die Buchung übermittelt wird, erhalten Sie eine Übersicht mit allen Reisedaten, dem endgültigen Mietpreis und den Anbieterbedingungen.
Alle Daten werden sicher SSL-verschlüsselt übertragen!
Nachdem Sie die Buchung abgeschlossen haben, erhalten Sie direkt per Email eine Buchungsbestätigung mit den Details zu Ihrer Reise und den Kontaktdaten Ihres Vermieters.
Ist die Unterkunft in meinem gewünschten Zeitraum frei und buchbar?
Im Buchungsformular wird Ihnen der aktuelle Belegungskalender mit den freien Zeiten zur Auswahl angezeigt. Generell gilt, dass Sie eine Unterkunft nur buchen können, wenn der Zeitraum im Kalender frei ist und die Mindestnächte erfüllt sind.
Was sind die Zahlungsarten und -ziele?
Zahlungsarten und -ziel entnehmen Sie bitte den Anbieterbedingungen, die auf der Übersichtseite zur Buchung vor Abschluß angezeigt werden und Ihnen nach Abschluß mit Ihrer Buchungsbestätigung zugesandt werden.
Generell brauchen Sie keine Kreditkartendaten oder Kontoverbindungen im Buchungsformular angeben.
Wird eine Kaution verlangt?
Ob und in welcher Höhe eine Kaution verlangt wird, wird Ihnen vor Abschluß der Buchung angezeigt.
Kann ich eine Buchung stornieren?
Ja. Beachten Sie aber, dass im Falle einer Stornierung durch den Mieter, Stornierungsgebühren vom Vermieter berechnet werden können. Die genauen Bedingungen und Stornierungsgebühren des Vermieters werden Ihnen vor Abschluß der Buchung angezeigt.
Sie haben noch Fragen bevor Sie buchen?
Wenn Sie telefonisch buchen möchten oder weitere Fragen haben, rufen Sie uns gerne an.
Buchungs-Hotline: 0231-96139022
Heute erreichbar: 9:00 - 18:00 Uhr
Hölscher 21
Betten 4
Größe 85 m²
Wohnzimmer 1
Schlafzimmer 2
Kochbereich Küche
Reisebabybett 38,50 €
Bademantel 27,50 €
Nespressomaschine 27,50 €
  • Nichtraucher
  • Internetzugang
  • Parkplatz
  • Balkon
  • Allergenarm
  • Obergeschoß
  • Waschmaschine
  • TV
  • Gartenmöbel
  • Doppelbett
  • Kleiderschrank
  • Backofen
Preis: ab 81,40 € *
pro Nacht

Konkrete Preisangaben werden bei der Buchung angezeigt.
* Die Preise gelten in € inkl. MwSt. Die Unterkunftsdarstellung ist ein unverbindliches Angebot.
Ohne Vorgabe einer Aufenthaltszeit wird der Unterkunftspreis für die günstigste Übernachtung angezeigt.
Wenn sich mehrere Wohneinheiten eine Darstellung teilen, gelten die Fotos auszugsweise. Kinderbetten gelten für Kinder bis 36 Monate.